Nieuwbouwwoning met 3 slaapkamers, tuin en carport te koop in Beselare
Deze woning met uitstekkende ligging, in een rustige wijk en op wandelafstand van het centrum én bovendien met een snelle verbinding naar de A19.
De woning voldoet aan de hedendaagse normen voor isolatie en ventilatie. Met een perceel van 338 m² biedt dit huis alle ruimte en comfort voor een gezin dat houdt van stijlvol en zorgeloos wonen.
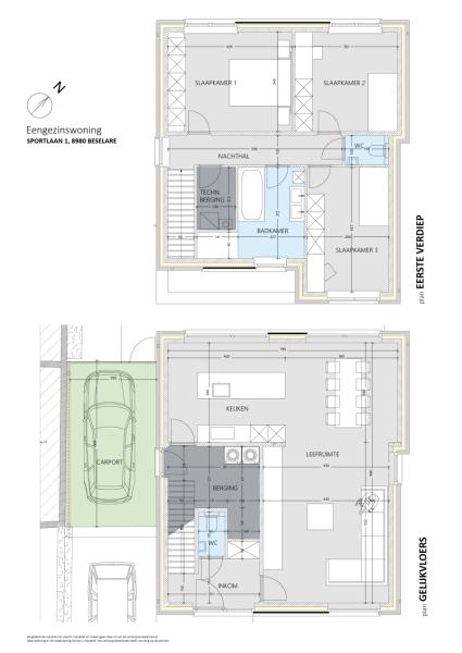
De woning heeft een ruime, lichtrijke leefruimte met geïntegreerde keuken, perfect voor gezellige familiemomenten of etentjes met vrienden. Aansluitend vind je een praktische berging en een gastentoilet op het gelijkvloers.
Op de verdieping vind je drie volwaardige slaapkamers, een badkamer met ligbad én douche, een apart toilet en een extra berging/technische ruimte.
Buiten geniet je van een ruime noordwestgerichte tuin, ideaal voor een groot terras waar je de avondzon meepikt. De woning is voorzien van PVC schrijnwerk en een witte crepi-gevel. Bovendien is er nog keuzevrijheid in materialen voor wie vroeg in het bouwproces instapt.
Indeling:
- Gelijkvloers: Inkomhal met gastentoilet en trap naar de verdieping, open leefruimte met eetruimte en keuken, berging.
- Verdieping: Nachthal, berging/technische ruimte, badkamer, apart toilet, 3 slaapkamers.
De prijs is 418.000€ exclusief BTW op de constructie en registratierechten op grondwaarde.
Heb je interesse? Neem dan contact op.











